Jewells Home RECALIBRATION
Unlocking flow and connection for a family of five.
PROJECT VITALS
Location: Jewells, NSW
Type: Interior Reconfiguration
Service Scope: Partial Design Only (Phase 01)
Status: Concept Delivered
THE CONTEXT
A disconnected layout left the kitchen, dining, and living areas isolated from each other. The primary living zones were oriented away from the backyard and pool, interrupting the natural flow of the home.
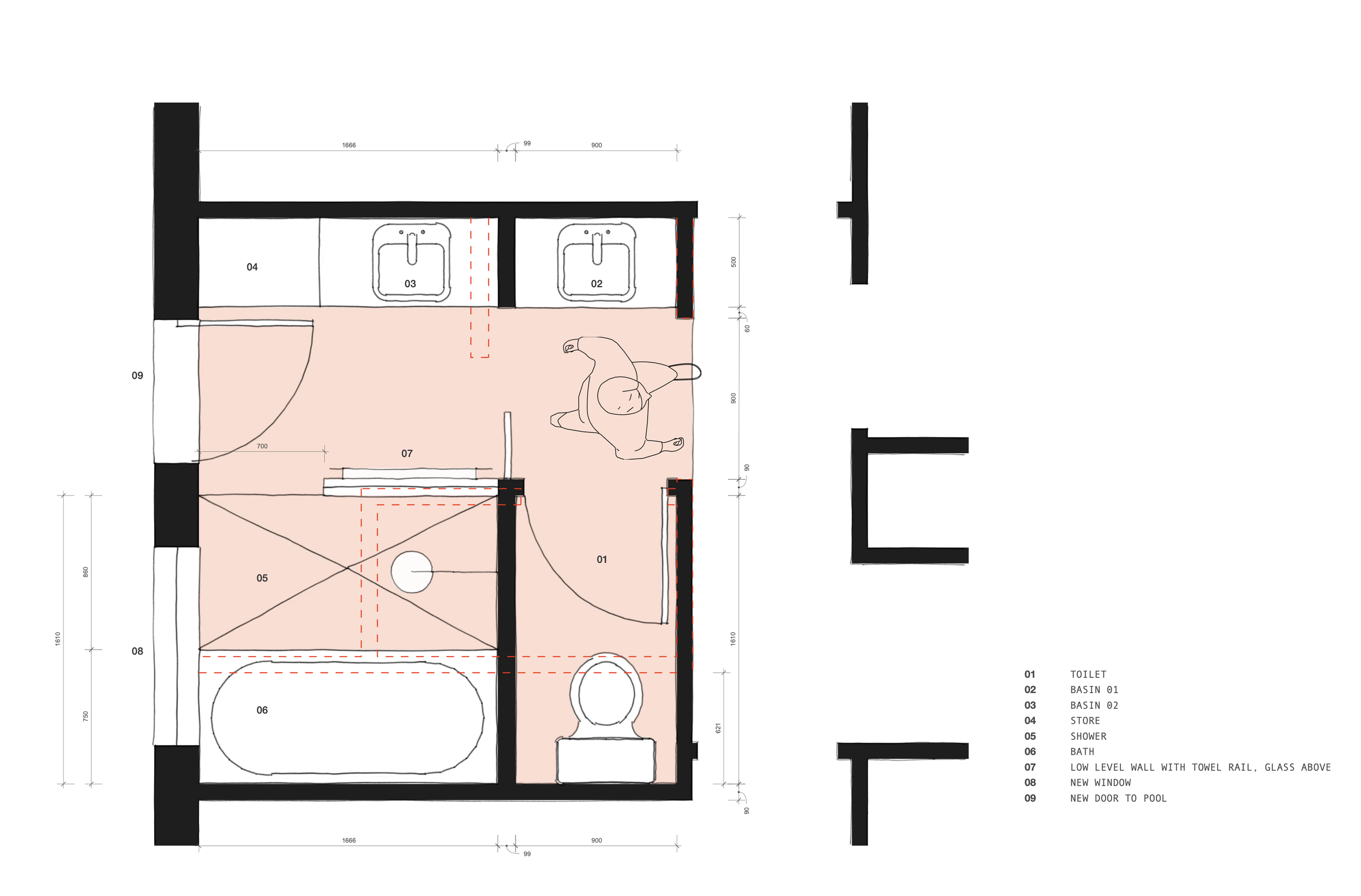
THE DESIGN
The reconfiguration reorients the kitchen and living areas to establish clear sightlines to the garden and pool. By removing select walls, a cohesive living zone is created without compromising the home's structure. Wasted space is reclaimed for a practical mudroom and laundry, while the bathroom is reconfigured as a "wet-room" entry with direct access to the outdoor pool area.
KEY FEATURES
Visual Connection: Living spaces reoriented to face the backyard, bringing natural light deep into the floor plan.
The Pool Entry: A direct link between the family bathroom and the pool area to manage the daily rhythm of outdoor living.
Spatial Efficiency: A dedicated mudroom and pantry expansion utilizing previously underused areas.
VIEW PROJECT ↓